Passa al contenuto principale
Ristrutturazione Via Imbriani 01
Ristrutturazione Via Imbriani 03
Ristrutturazione Via Imbriani 05
Ristrutturazione Via Imbriani 04
Ristrutturazione Via Imbriani Parma 01
Ristrutturazione Via Imbriani Parma 06

Via Imbriani

8 Guests
3 Bedrooms
2 Bathrooms

Nel cuore dell’Oltretorrente è partito un intervento di integrale ristrutturazione di un intero palazzo. Questo intervento di riqualificazione urbana, seguendo le nuove tendenze che si basano sul NON consumo di suolo, è volto all’utilizzo di tecnologie all’avanguardia finalizzate al massimo risparmio energetico e nel rispetto delle normative imposte per l’ottenimento delle agevolazioni inerenti a ECOBONUS e SISMABONUS.

L’inetrvento prevederà l’inserimento di un ascensore all’interno dello stabile insieme a un’accurata ristrutturazione delle singole unità interne utilizzando materiali e rifiniture di alto pregio.

Il progetto architettonico prevede quindi l’ascensore direttamente presso le abitazioni e ognuna di queste avrà caratteristiche diverse. Sono disponibili bilocali e trilocali, ma anche quadrilocali e un attico, con possibilità di cantine al piano terra.

Ad oggi è ancora possibile personalizzare la divisione interna degli ambienti e la scelta dei materiali nell’ambito di un ampio campionario.

La classe energetica prevista sarà la A4 e si potrà accedere a sgravi fiscali con possibilità anche di cederli. L’acquisto verrà effettuato da soggetto privato con l’agevolazione del pagamento della tassa di registro (e non l’IVA) calcolata sulla rendita catastale e non sul reale importo della compravendita.

Ristrutturazione Via Imbriani 06
Ristrutturazione Via Imbriani 07
Ristrutturazione Via Imbriani 09

Piante appartamenti

Bilocale Primo piano Via Imbriani 60
Bilocale Primo piano
Trilocale Primo piano Via Imbriani 60
Trilocale Primo piano
Trilocale Secondo piano Via Imbriani 60
Trilocale Secondo piano
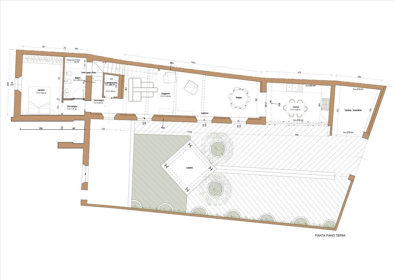
Casa semi indipendente via Imbriani Home prime
Casa Semi indipendente

Tipologie

  • Bilocale di 52 mq ⇒ VENDUTO

  • Trilocale di 140 mq ⇒ VENDUTO

  • Quadrilocale di 185 mq ⇒ VENDUTO

  • Casa semi indipendente 150 mq ⇒ scopri di più!

Quartiere Oltretorrente

C’è un quartiere che racchiude tutta la storia di Parma e ne rappresenta l’aspetto più popolare: è appunto l’Oltretorrente. Situato di la da l’acqua del torrente Parma e dal quale trae il nome, questo nucleo si è sviluppato nel corso del tempo lungo la via Emilia, antico decumano della colonia romana fondata nel 183 a.C.

L’Oltretorrente, rispetto al centro della città, si estende per circa 1,1 km², tra il torrente Baganza e la linea ferroviaria Parma-la Spezia. Questo quartiere è anche chiamato “Parma Vecchia”, pur non essendo così antico quanto il nucleo originario.

Questo quartiere subì un drastico cambiamento durante il ventennio fascista, infatti parte dei vecchi edifici di origine medievale vennero in parte demoliti.

Oggi, via D’Azeglio che ricalca l’originaria via consolare, ci porta all’interno del quartiere con i suoi affascinati e imponenti monumenti e ci fa scoprire i caratteristici borghi con la loro spiccata vivacità tipici dell’Oltretorrente. Insomma un quartiere in continua evoluzione, che mantiene però solidi legami col suo passato, grazie a una storia che affonda le radici nella più remota antichità di Parma.

Dettagli pre ristrutturazione

Ristrutturazione Via Imbriani 11
Dettagli pre ristrutturazione
Ristrutturazione Via Imbriani 10
Dettagli pre ristrutturazione
Ristrutturazione Via Imbriani 12
Dettagli pre ristrutturazione
Ristrutturazione Via Imbriani 13
Dettagli pre ristrutturazione
Ristrutturazione Via Imbriani 14
Dettagli pre ristrutturazione

Dove

S.da Matteo Renato Imbriani, 60, 43125 Parma PR, Italia

Nel cuore dell’Oltretorrente una nuova rigenerazione urbana targata Home Prime!

Dettagli lavori di ristrutturazione

Ristrutturazione Via Imbriani Parma 04
Dettagli ristrutturazione
Ristrutturazione Via Imbriani Parma 02
Dettagli ristrutturazione
Ristrutturazione Via Imbriani Parma 03
Dettagli pre ristrutturazione

Alcune informazioni sul quartiere Oltretorrente

Monumenti

L’Oltretorrente è forse il luogo più caretteristico della città , ricco di tesori artistici come il Parco Ducale,  l’Ospedale Vecchio, le Torri dei Paolotti e la Chiesa di Santa Croce, di antiche origini romaniche, sorta lungo il percorso della Via Francigena.