Passa al contenuto principale

Loggati per inviare una richiesta


Segnala annuncio

Segnala questo annuncio


    Visto: 14
    Preferiti: 0
    Vendita

    Rustico in vendita a Otranto

    Non disponibile

    220.000,00 €


    3
    3
    m2

    Agente/Agenzia

    Idee Immobiliari
    Massimo Capoccia

    • Situato nella splendida zona dei Laghi Alimini, a qualche chilometro di distanza dal Lago Maggiore, dalla meravigliosa Costa Adriatica Salentina e dalla famosissima Baia dei Turchi;

      Abbiamo il piacere di proporvi la VENDITA di una SOLUZIONE INDIPENDENTE, completamente immersa nel verde grazie al giardino di proprietà con una grandezza complessiva di 10.000 metri quadri.

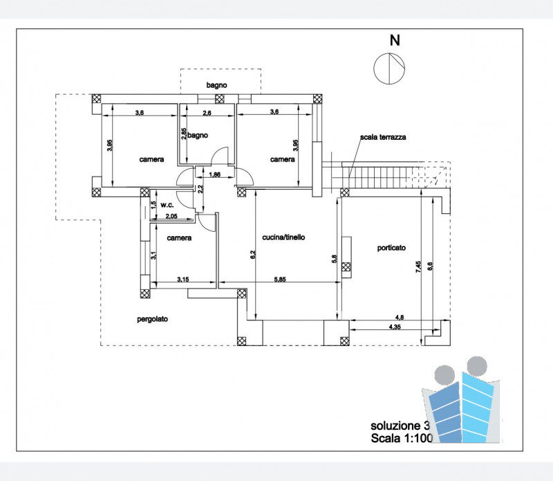
      L’immobile, attualmente, si presenta allo STATO RUSTICO ed ha una metratura coperta totale di circa 100 metri quadri, così sviluppati: porticato di pertinenza, ingresso su zona living open space con cucina a vista, tre comode camere da letto e a disposizione tre bagni.

      A completare la soluzione un lastrico solare di proprietà esclusiva dal quale godersi la splendida vista che l’immobile offre.

      Questa soluzione si presenta come un’ottima opportunità per costruire a seconda dei propri gusti ed esigenze, la propria oasi di pace in un angolo di paradiso.

      Per maggiori informazioni potete contattare Idee Immobiliari al tel. 0832-230024 con SEDE IN VIA OBERDAN N.36 LECCE, APERTA DAL LUNEDÌ AL VENERDÌ DALLE 08:30 ALLE 13:00 e DALLE 16:30 ALLE 20:00, IL SABATO DALLE 9:00 ALLE 13:00 o visitare il nostro sito https://www.ideeimmobiliari.it/ .
      Dal 2003 ci occupiamo con passione e dedizione della vendita e della locazione di tutti gli immobili situati a Lecce e provincia, garantendo trasparenza ed affidabilità a tutti i nostri clienti.
      Siamo a disposizione per una valutazione reale, completamente gratuita senza impegno del Vostro immobile. — annuncio pubblicato con GESTIONALEIMMOBILIARE.it

      • Ipe: 0.00
      • Ipe Unit: kWh/m2anno
      • Version: ape2015
      • Cucina
      • Giardino
      • Soggiorno
      • Terrazzi: 1

    Logo Homeprime

    Seguici

    Skyline

    Invia una Richiesta

    Agente/Agenzia

    Idee Immobiliari
    Massimo Capoccia
    Ho letto e accetto la Privacy Policy*