Passa al contenuto principale

Loggati per inviare una richiesta


Segnala annuncio

Segnala questo annuncio


    Visto: 110
    Preferiti: 0
    Vendita

    Porzione di Bifamiliare - Vicofertile (PR)

    Via Martiri della Liberazione, 78, 43126 Parma PR, Italia

    260.000,00 €


    3
    3
    150m2

    • Immagina una casa immersa nel verde, dove la natura ti accoglie ogni giorno e il silenzio della campagna si fonde con la tranquillità di una zona residenziale esclusiva. In posizione privilegiata a Parma – Vicofertile, a pochi minuti dal centro città, nasce questa bifamiliare che rappresenta un’opportunità unica per chi desidera spazio, privacy e contatto con la natura senza rinunciare alla comodità dei servizi.

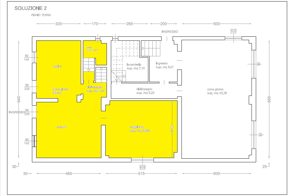
      L’immobile, di circa 150 mq, è da ristrutturare e offre un’enorme possibilità di personalizzazione, ideale per dare forma alla casa dei tuoi sogni. A completare la proprietà, un giardino privato di circa 1.000 mq, perfetto per creare un’oasi verde tutta tua: un grande giardino, un’area relax, un orto o uno spazio per vivere all’aperto in totale riservatezza.

      🌿 Caratteristiche principali:

      • Porzione di Bifamiliare di 150 mq da ristrutturare

      • 1.000 mq di giardino privato

      • Ampi spazi da modellare secondo il proprio stile

      • Contesto verde, riservato e silenzioso

      • Posizione strategica: immersa nella natura ma a pochi minuti da ParmaIl prezzo include:

      • lavori di divisione interna come da progetto allegato

      • rifacimento della facciata

      • isolamento tetto

      • area esterna frazionata
      • adeguamento e rinnovamento lattoneria

        Sono esclusi i lavori interni e la sistemazione delle aree esterne.

        Possibilità di preventivo “chiavi in mano” acquisto + ristrutturazione con capitolato c/o i nostri uffici. (Indicativamente, dipende della finiture scelte + impianti da €80.000 a €150.000)

      🌳 Vivere in armonia con la natura
      La soluzione ideale per chi cerca una vita più serena, lontano dal caos cittadino, ma con tutti i servizi facilmente raggiungibili.

      💰 Prezzo richiesto: €260.000 da ristrutturare

      Se sogni di creare la tua casa ideale immersa nel verde, questa bifamiliare è il punto di partenza perfetto.
      📞 Chiama Andrea: 349 4760577 e prenota una visita.

      • Classe Energetica: In fase di definizione
      • Flag quasi zero: Si
      • Prestazione Estate: Buono
      • Prestazione Inverno: Buono
      • Kwh Unit: kWh/m3anno
      • Version: ape2014
      • Consegna: A rogito
      • Destinazione d'uso: Da ristrutturare
      • Giardino
      • Mq Giardino: 1000
      • Panorama: 4
      • Piano Numero: 0
      • Posizione: Interna
      • Riscaldamento autonomo
      • Soggiorno angolo cottura
      • Totale Piani Unità: 2
      • Totale Piani: 2

    Agente

    Alessandro Colla


    Logo Homeprime

    Seguici

    Skyline

    Invia una Richiesta

    Ho letto e accetto la Privacy Policy*