Passa al contenuto principale

Loggati per inviare una richiesta


Segnala annuncio

Segnala questo annuncio


    Visto: 1
    Preferiti: 0
    Vendita

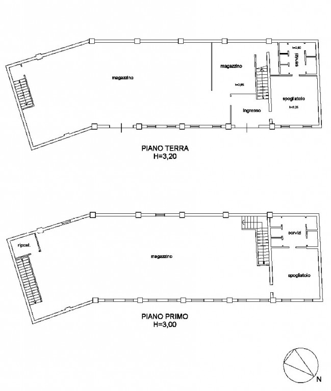
    Magazzino in vendita di 630 mq

    Via Podestarile n. 2/A

    320.000,00 €


    630m2

    Agente/Agenzia

    DB IMMOBILIARE DI DANIELE BENETOLLO
    Daniele Benetollo

    • Immobile in esclusiva al Gruppo Padova MLS

      PADOVA, Zona Ponte Di Brenta centro. SOLO PER INVESTIMENTO – LOCATO CON RENDITA 8% Magazzino – Laboratorio – Showroom – Uffici disposto su 2 piani di Mq 315 al piano terra e mq 315 al piano primo, per un totale di Mq 630 commerciali. Altezza locali 3 mt. per piano. Reception – ufficio, servizi su entrambi i piani. Parcheggio condominiale asfaltato per 4 auto più convenzione con parcheggio coperto comunale. Impianto elettrico nuovo, aria condizionata e impianto di riscaldamento autonomi. Prezzo di vendita Euro 320.000

      D. Perchè vedo che la pubblicità di questo immobile è inserita anche da altre agenzie?

      R. Semplice e trasparente : Questo è un immobile provvisto di regolare incarico da parte del venditore conferito a una sola agenzia del gruppo Padova MLS, che grazie all’esclusivo metodo di collaborazione consente, a tutte le agenzie aderenti, di ampliare e potenziare la visibilità dello stesso. Tale attività è debitamente regolamentata tra l’agenzia detentrice del mandato da parte del Venditore e le agenzie autorizzate a proporlo.

      D. Cosa cambia quindi per chi cerca casa?

      R. Grazie a questo servizio il cliente potrà ricercare senza limiti territoriali la casa desiderata con l’assistenza di un UNICO INTERLOCUTORE, che potrà aiutarlo e consigliarlo nella scelta tra TUTTI gli immobili disponibili nella rete di agenzie che si avvalgono di questo sistema di lavoro, riducendo i tempi di una affannosa ricerca e di continua richiesta di informazioni, e il venditore vede amplificata la promozione del suo immobile. — annuncio pubblicato con GESTIONALEIMMOBILIARE.it

      • Ipe: 75.48
      • Ipe Unit: kWh/m3anno
      • Version: ape2015
      • Allarme
      • Aria condizionata
      • Ingresso indipendente
      • Posizione: Centrale
      • Riscaldamento autonomo
      • Totale Piani: 2

    Logo Homeprime

    Seguici

    Skyline

    Loggati per inviare una richiesta