Passa al contenuto principale

Loggati per inviare una richiesta


Segnala annuncio

Segnala questo annuncio


    Visto: 6
    Preferiti: 0
    Affitto

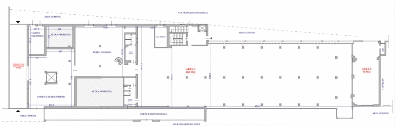
    Attivita commerciale in affitto di 1370 mq a Buccinasco

    Via Francesco Petrarca

    120.000,00 € / mese


    1370m2

    Agente/Agenzia

    STUDIOTARA SRL
    Alessandro Tarantola

    • Proponiamo in locazione un ampio immobile commerciale di circa 1370 mq situato nel cuore di Buccinasco, una delle aree più dinamiche e servite dell’hinterland milanese. L’immobile si trova su strada principale ad alta visibilità, circondato da altre attività commerciali e residenze, garantendo così un costante flusso pedonale e veicolare.

      La struttura dispone di numerose vetrine fronte strada che assicurano massima luminosità naturale agli ambienti interni e offrono grande visibilità per l’esposizione dei prodotti o servizi. Gli spazi sono completamente open space, facilmente personalizzabili secondo le esigenze della tua attività: ideale per supermercati, palestre, showroom o grandi negozi specializzati. È presente anche un sistema di climatizzazione già installato ed è possibile accedere direttamente dall’ampio parcheggio antistante riservato alla clientela.

      La zona è ben collegata ai mezzi pubblici e alle principali arterie stradali verso Milano città; nelle immediate vicinanze si trovano scuole, uffici e altri poli attrattivi del territorio.

      Questa soluzione rappresenta una rara opportunità per chi desidera avviare o ampliare la propria attività in uno degli indirizzi più ricercati della zona sud-ovest milanese!

      Per maggiori informazioni o fissare una visita senza impegno contatta subito la nostra agenzia: saremo lieti di accompagnarti nella scoperta di questo esclusivo spazio commerciale.

      Il presente annuncio ha valore puramente indicativo e non costituisce elemento contrattuale. STUDIOTARA.IT si rende disponibile ad una valutazione gratuita del Vostro immobile.

      Per qualsiasi informazioni chiamateci allo 02/36557365 – 334/2334661 — annuncio pubblicato con GESTIONALEIMMOBILIARE.it

      • Ipe: 0.00
      • Ipe Unit: kWh/m3anno
      • Version: ape2015

    Logo Homeprime

    Seguici

    Skyline

    Loggati per inviare una richiesta