Passa al contenuto principale

Loggati per inviare una richiesta


Segnala annuncio

Segnala questo annuncio


    Visto: 16
    Preferiti: 0
    Vendita

    Appartamento in vendita di 94 mq

    via alessandro manzoni 17

    189.000,00 €


    1
    1
    94m2

    Agente/Agenzia

    Immobiliare Botto Borgomanero

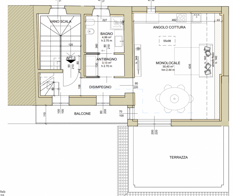
    • Questo appartamento in vendita si trova a Borgomanero, un moderno bilocale al secondo piano con mansarda, ideale per chi cerca un’abitazione nuova, curata e pronta da vivere.
      L’immobile è composto da:
      – Soggiorno con cucina a vista
      – Camera matrimoniale
      – Bagno finestrato
      – Ampia mansarda collegata internamente
      – Terrazzo di 24 mq

      Realizzato con materiali contemporanei, questo appartamento viene consegnato completamente nuovo e offre ambienti ben distribuiti, ottima esposizione alla luce naturale e impianti di ultima generazione. Completa la proposta la possibilità di acquistare separatamente le pertinenze: box auto, cantina e posto auto, così da personalizzare al massimo la soluzione in base alle proprie esigenze.
      Il grande terrazzo diventa un’estensione naturale della zona giorno: uno spazio arioso dove godersi pranzi all’aperto, momenti di relax e serate in compagnia. La mansarda dona carattere e ulteriori possibilità di utilizzo, trasformandosi facilmente in studio, zona hobby o stanza aggiuntiva.
      Una casa nuova, accogliente e pensata per offrire comfort e libertà di vivere gli spazi secondo il proprio stile.
      Contattaci ora per fissare una visita e scoprire questa imperdibile opportunità! — annuncio pubblicato con GESTIONALEIMMOBILIARE.it

      • Ipe: 113.40
      • Ipe Unit: kWh/m2anno
      • Version: ape2015
      • Riscaldamento a pavimento
      • Terrazzi: 1

    Logo Homeprime

    Seguici

    Skyline

    Loggati per inviare una richiesta