Skip to main content

Loggati per inviare una richiesta


Visualizzazioni: 67
Aggiunto ai preferiti: 0
Segnala annuncio

Segnala questo annuncio


    Vendita

    🏡 Eleganza e comfort nel cuore di Parma – Via Farini

    Str. Luigi Carlo Farini, 71, 43121 Parma PR, Italia

    530.000 €

    2
    2
    150m2

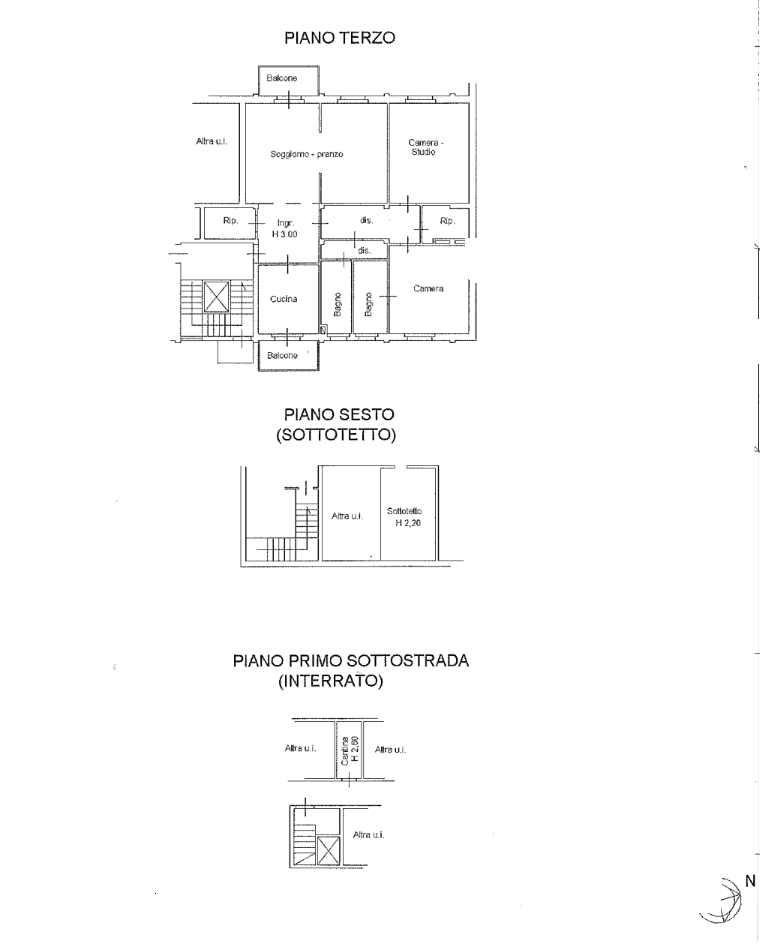
    • Nel tratto più elegante e ricercato di Via Farini, dove la bellezza del centro storico incontra la comodità dell’accesso carrabile, nasce questa residenza di pregio di circa 150 mq, frutto di una ristrutturazione completa e attenta ai dettagli.

      L’appartamento si distingue per armonia degli spazi, luce e raffinata sobrietà: un grande soggiorno accoglie l’ingresso e si apre su ambienti ampi e conviviali, mentre la cucina abitabile rappresenta il cuore funzionale della casa, ideale per chi ama vivere e condividere ogni momento con stile.

      La zona notte ospita due ampie camere matrimoniali, una delle quali con bagno en suite, oltre a un secondo bagno, entrambi curati con materiali e finiture di qualità superiore.

      Completano la proprietà due balconi, solaio, cantina e garage — elementi rari e preziosi in una posizione così centrale.

      La generosa metratura consente inoltre di ricavare con semplicità una terza camera da letto, ripristinando la disposizione originaria, senza compromettere l’equilibrio degli spazi.

      Qui, ogni dettaglio è stato pensato per offrire comfort, eleganza e funzionalità, in una posizione che rappresenta il perfetto equilibrio tra vita cittadina e riservatezza.

      Negozi, ristoranti, supermercati e tutti i servizi si trovano letteralmente sotto casa, rendendo questa dimora la scelta ideale per chi desidera vivere l’autentico fascino del centro di Parma con la comodità di un’abitazione contemporanea e raffinata.

      • Classe Energetica: D
      • Flag quasi zero: Si
      • Prestazione Estate: Buono
      • Prestazione Inverno: Buono
      • Kwh Unit: kWh/m3anno
      • Version: ape2014
      • Accesso disabili
      • Allacciamento fognatura
      • Allarme
      • Animali ammessi
      • Aria condizionata
      • Arredo
      • Ascensore
      • Caldaia a condensazione
      • Canna fumaria
      • Cantina
      • Cassaforte
      • Consegna: A rogito
      • Cucina
      • Cucina arredata
      • Destinazione d'uso: Ottimo
      • Garage
      • Impianto Elettrico: A norma
      • Lavanderia
      • Panorama: 4
      • Piano Numero: 3
      • Porta blindata
      • Portineria
      • Posizione: Centrale
      • Riscaldamento autonomo
      • Soffitta
      • Soggiorno
      • Spese Condominiali: 3500
      • Tapparelle motorizzate
      • Terrazzi: 2
      • Totale Piani Unità: 6
      • Totale Piani: 5
      • Zanzariere

    Agente

    Alessandro Colla


    Logo Homeprime

    Seguici

    Skyline

    Prendi Appuntamento

    Scegli Date ed orari

    Fascia oraria Mattutina
    9:00 - 11:00
    11:00 - 12:00
    Fascia oraria Pomeridiana
    15:00 - 17:00
    17:00 - 19:00

    Inserisci i tuoi dati

    Ho letto e Accetto la Privacy Policy

    Loggati per inviare una richiesta